Whale Gazlı Karavan Su Isıtıcısı
Whale 8 Litre Karavan Su Isıtıcısı, karavanınıza ek alan kazandıran, araç altına monte edilebilen ve karavan yan duvarlarında delik açmaya gerek bırakmayan ideal bir çözümdür. Bu su ısıtıcısı, musluğunuza gelen suyu hızla ısıtmak için sadece gaz çalışabilme özelliğine sahiptir.
Kompakt ve Hafif Tasarım
Whale su ısıtıcısı, 8 litre su ısıtma kapasitesi ile karavanınıza büyük bir avantaj sağlar. Kompakt ve hafif yapısı sayesinde montaj kolaylığı sunar ve karavan içindeki alanın daha verimli kullanılmasına olanak tanır. Araç altına monte edilebilmesi, içeride daha fazla yaşam alanı yaratır.
Esnek Montaj Seçenekleri
Ürünün tasarımı, karavan şasesine farklı konumlarda monte edilebilme esnekliği sunar. Bu sayede, montaj yapılacak alan konusunda geniş bir yelpaze sunarak, en uygun yeri seçmenize imkan tanır.
Whale Duo Kontrol Paneli Uyumluluğu
Whale Duo kontrol paneli ile tam uyumlu çalışacak şekilde tasarlanmıştır. Bu sayede, suyu ısıtma ve yeniden ısıtma fonksiyonlarını kolayca yönetebilirsiniz. Ürünün hızlı su ısıtma performansı ile tek bir duş için yaklaşık 11 dakika, çift duş için ise sadece 20 dakika beklemeniz yeterli olur.
Yıl Boyunca Kullanım ve Üstün İzolasyon
Kullanıcı tarafından etkinleştirilebilen donma modu sayesinde, Whale su ısıtıcısı dört mevsim kullanıma uygundur. Gelişmiş EPS ısı izolasyonu, suyun daha uzun süre sıcak kalmasını sağlayarak, enerji tasarrufu yapmanıza yardımcı olur.
Kullanım Alanı:
Araç altı ve içi
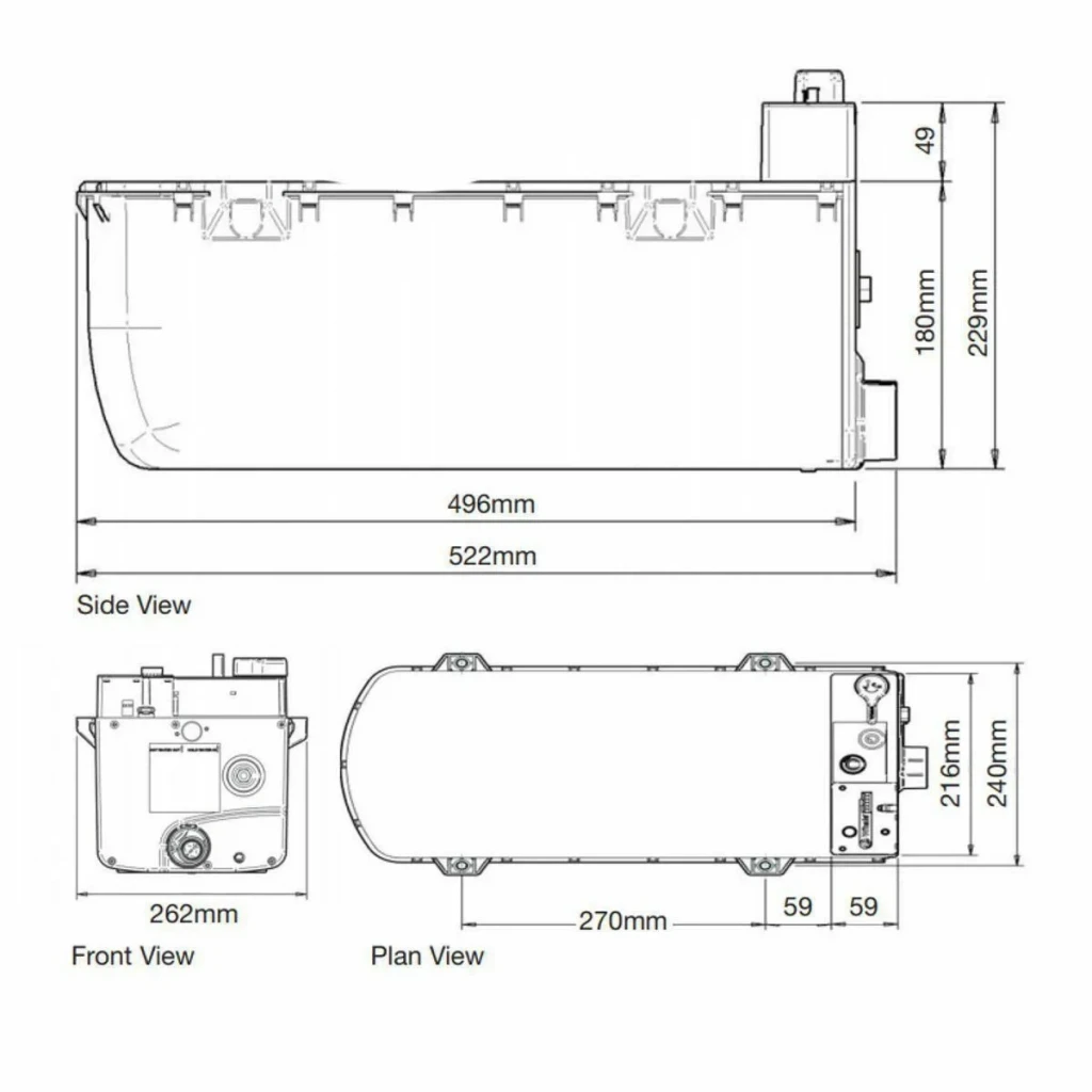
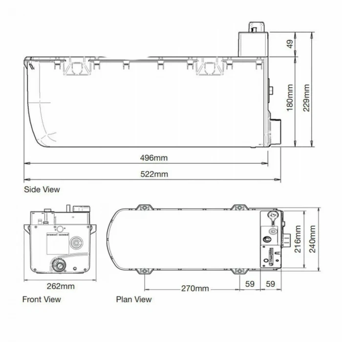
Teknik Özellikler
| Boyut (en x boy x derinlik) | 26.2 x 52.2 x 18 cm |
| Ağırlık | 4.5 kg |
| Su Kapasitesi | 8 L |
| Sıcak/Soğuk Su Bağlantısı | 12 mm hortum |
| Gaz Tipi ve Basıncı | Bütan/Propan 30 mbar |
| Gas Isı Girişi | 1.35 kW |
| Standby Kayıp | Gas ile 43 W |
| DC Voltaj | 9.9 ≤ 12.0≤ 14.9 |
| DC Akım | Çalışma Halinde 0.48 A Standby Halde 0.03 A |
| AC Güç Kaynağı | 230 V, 50 Hz |
| Maksimum Su Basıncı | Supply 1.9 bar Rated 3.0 bar |
| IP (Ingress Protection) Değeri | IP 45 |
| Maksimum Su Sıcaklığı | - 70 °C |
| Malzeme | Silindir - Paslanmaz Çelik 316 L Hazne - PP %20 GF darbe mukavemeti için İzolasyon - EPS |
| Sertifikalar | CE-GAR, LVD, EMC |
İade ve cayma hakkı
Web sitemiz üzerinden yapılan satışlar Tüketicinin Korunması Hakkında Kanun ile Mesafeli Sözleşmeler Yönetmeliğine tabi satışlardır ve bu kanun-yönetmelikteki hükümleri uygulamaktadır.İade edeceğiniz ürünlerin aşağıdaki şartlara uygun olması işlemlerin hızlı bir şekilde tamamlanmasını sağlayacaktır:
İade edeceğiniz ürüne ilişkin web sayfamızda yer alan iletişim bilgileri doğrultusunda bizimle irtibata geçmeniz vebildirimde bulunmanız gerekmektedir. İade Kargo gönderilerinde Kargo bedeli ödemeden Anlaşmalı olduğumuz Yurtiçi Kargo firması ile yapılması gerekir. İade bildiriminde bulunulmadan gönderilecek ürünler müşteriye geri gönderilecektir. Anlaşmalı olduğumuz YURTİÇİ KARGO ile gönderilmeyen kargolar teslim alınmamaktadır.
Ürünlerin kutusu üzerindeki, ithalatçı veya üretici firma tarafından yapıştırılmış olan etiketlerin yırtılması, vakumlu veya jelatinli ambalajın açılması durumlarında, iade talepleri kabul edilmemektedir.
İadenin, satın alınan ürün vakum ambalajlı ise ambalajı açılmadan, tahrip edilmeden, bozulmadan ve ürün kullanılmadan teslim tarihinden itibaren ondört (14) günlük süre içinde gerçekleştirilmesi gereklidir.
Tüketicinin Korunması Hakkında Kanun 'un 4.Maddesine göre, "Tanıtım ve kullanma kılavuzunda ya da reklam ve ilânların da yer alan niteliklerine aykırı olan ya da kullanım amacı bakımından tüketicinin ondan beklediği faydaları azaltan maddi, hukuki veya ekonomik eksiklikler içeren mallar, ayıplı mal olarak kabul edilir. Müşteri, malın teslim tarihinden itibaren 30 gün içerisinde ayıplı mal bildiriminde bulunursa, ürünüiadeetme, bedel indirimi, ücretsiz değişim ya da ücretsiz onarım haklarından birine sahiptir.” .
Ayıplı Mal bildiriminde bulunarak yukarıda belirtilen haklardan faydalanmak için;
Ürünün özellikleri, tanıtımında belirtilen özelliklerden farklıysa ya da, müşterinin üründen beklediği faydayı azaltan eksiklikler varsa, ürün, ayıplı mal sınıfına girer.
Müşteri, 30 gün içerisinde ayıplı mal bildiriminde bulunmalıdır.
Ayıplı Mal bildiriminde, ürünün ithalatçısı düzenlenen bir raporla kullanım hatasının bulunup bulunmadığı belirlenir. Kullanıcı hatasının olduğu tespit edilirse, müşteri, haklardan faydalanamaz.
Cayma hakkı
Mesafeli Sözleşmeler Yönetmeliği 'nin 8. Maddesine göre, müşteri, "Ürünü teslim aldığı tarihten itibaren Ondört içerisinde hiçbir sorumluluk üstlenmek sizin ve hiçbir gerekçe göstermeksizin malı reddederek sözleşmeden cayma hakkına sahiptir.” . Buna göre, müşteri, ürünü aldıktan sonra, 14 gün içerisinde sebepsiz iade etme hakkına sahiptir.
Ürün İade kargo gönderimi yapılamadan öden hesabınızdan, İade talep başvurusu oluşturulması gerekilmektedir. İade başvurusu için ön talep oluşturmadan yapılan gönderimlerde firmamız sorumlu değildir.
DEĞİŞİM HAKKI
Ürün değişimi işlemlerinde öncelikle web sitemiz üzerinden hesabınızdan ticket mesaj artarak veya numaradan ulaşarak üründe yaşadığınız sorunu ve hangi ürünle değiştirmek isteyeceğini belirtiniz. Müşteri temsilcinizin ticket mesajınızdan sonra sizi yönlendirmiş olduğu talimatlara göre Anlaşmalı olduğumuz Yurtiçi Kargo firması ile ürün Kargo bedeli Ödemeden gönderimini gerçekleştiriniz.
